Domicilio en Carampangue
Descripción del proyecto
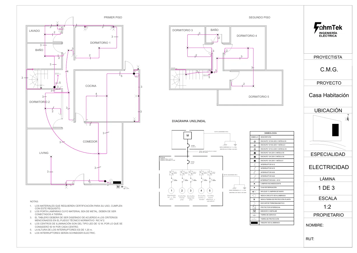
Este proyecto eléctrico, ubicado en Carampangue, corresponde a una instalación domiciliaria que incluye:
- Living-comedor
- Cocina
- Dos baños
- Cinco dormitorios
La potencia total declarada es de 11,65 kW, distribuida en cinco circuitos independientes para garantizar seguridad y eficiencia.
Especificaciones técnicas
- Tomas de corriente generales: 10 A.
- Tomas de corriente en cocina y baños: tipo 10/16 A, cumpliendo con la normativa vigente.
- Protecciones: dimensionadas y seleccionadas de acuerdo a la cubicación de materiales y las exigencias de seguridad.
- Conductores: seleccionados conforme a la normativa eléctrica chilena, considerando caída de tensión y capacidad de conducción.
Alcance del diseño
- 💡 Planos de iluminación y enchufes
- 📐 Diagrama unilineal
- 📊 Cuadros de carga
- 🔌 Selección de conductores por caída de tensión y capacidad
- ⚡ Cálculo y selección de protecciones
- 📦 Cubicación de materiales
Planos del proyecto
Plano de alumbrado

Plano de enchufes

Diagrama unilineal
