Ampliación Eléctrica para Negocio
Descripción del proyecto
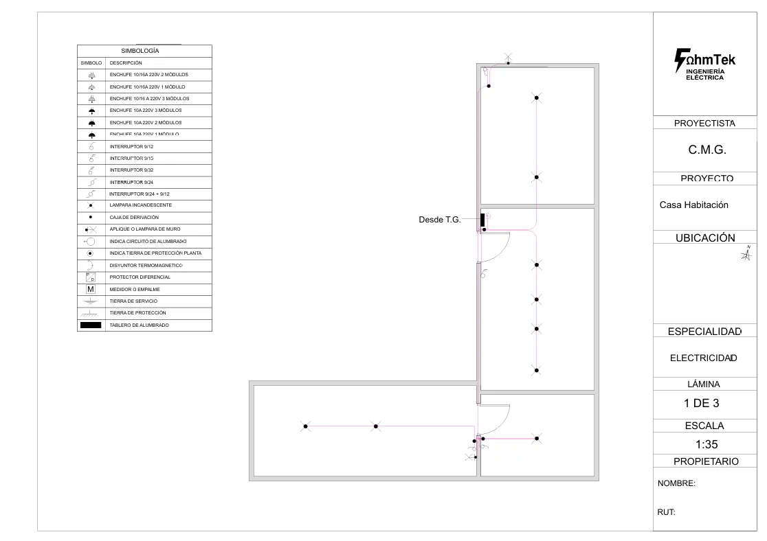
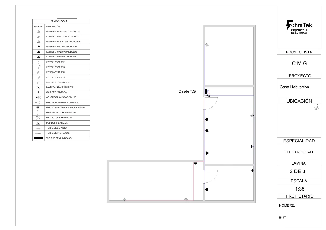
Este proyecto contempla el diseño eléctrico para la ampliación de una vivienda, donde la nueva área estará destinada a uso comercial.
El trabajo incluyó un levantamiento en terreno, seguido de la elaboración de planos eléctricos y el diseño completo del sistema de alimentación, incorporando:
- Esquemas unilineales.
- Representación del tablero en vista 2D.
- Modelado en 3D para visualización y proyección.
Entregables al cliente
- 📄 Informe técnico del proyecto.
- 💡 Plano de alumbrado.
- 🔌 Plano de enchufes.
- 📐 Diagrama unilineal.
- 📊 Tablero de conexionado en 2D.
- 🖥 Tablero en 3D con ubicación de protecciones.
Documentación visual
Plano de alumbrado

Plano de enchufes

Diagrama unilineal
